この事例をもとに
リノベの相談
場所:福島・郡山リノベスタジオ
やわらかな木の質感と、畳のやさしい空気感が広がるLDK。リノベーション前は和室が中心だった物件を、家族が自然と集まれる住空間へと変更。
広々としたLDKを中心に、家事室や収納、各居室への動線を整えることで、暮らしのしやすさと心地よさを両立。これからの家族の時間を、より穏やかに過ごせる住まいへと生まれ変わりました。
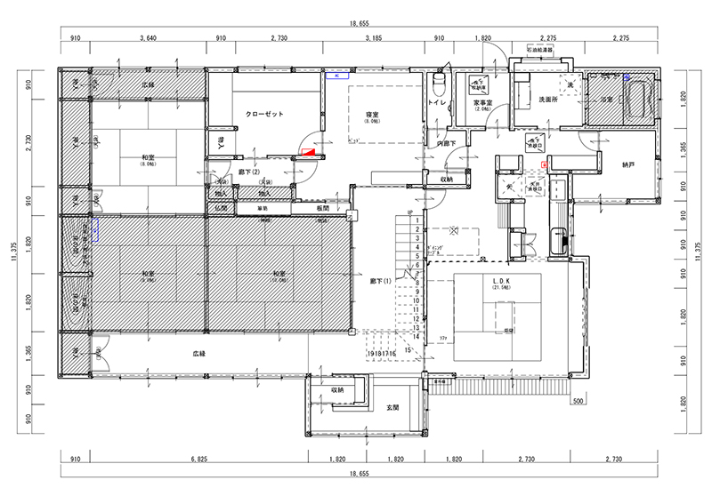
元々の間取りは和室が多く、それぞれの部屋が独立している古いつくりの物件でした。そのため、家族が同じ空間で過ごす、「古さを解消したもっと家族が自然と集まれる場所がある住まい」を目指して、リノベーションが始まりました。
また、これからの暮らしを考え、日々の生活がスムーズになる住まいに整えたいというご要望も。そこで、和の落ち着きは残しつつ、LDKを中心とした間取りへと大きく見直しました。
住まいの中心には、約21.5帖の広々としたLDKを配置。畳スペースとフローリングを組み合わせることで、くつろぎ方に合わせて過ごし方を選べる空間となっています。
畳の上でごろりと横になったり、ソファでゆったり会話を楽しんだり。家族それぞれが思い思いに過ごしながらも、同じ空間でつながりを感じられるのが魅力です。
テレビまわりには造作収納を設け、見せる・しまうをバランスよく計画。生活感を抑えつつ、すっきりとしたリビング空間を保てるよう工夫されています。
ソファや畳スペースなど各々好きな場所でくつろげる空間に
造作テレビ台の収納は大容量なので、リビングはいつでもスッキリ
キッチンとダイニングがカウンターでゆるやかにつながった間取りにすることで、料理の配膳や後片付けがスムーズに。自然と家族で手伝いながら家事ができるので負担を感じにくく、日々の流れが自然と整います。さらに、キッチンから洗面・家事室へと回遊できる動線を確保し、調理・洗濯・片付けまでを効率よく行えるよう計画。移動のムダが少なく、家事を同時進行しやすい住まいとなりました。収納も生活動線に合わせて豊富に設けているため、使う場所の近くにしまえる環境に。片付けが習慣化しやすく、すっきりとした空間を無理なく保てる住まいです。

キッチンとダイニングがつながったカウンターで家事がはかどります
大容量のウォークインクローゼットで家中の物をすっきり収納できます
LDKで家族が集まり、畳スペースではゆったりとくつろぐ。そして個室では、それぞれが自分の時間に集中できる。間取りを見直したことで、「集まる時間」と「落ち着く時間」の切り替えがしやすくなりました。家族で過ごす何気ない会話の時間も、家事をしながら過ごす日常も、以前よりゆとりを持って感じられるように。
和の落ち着きと、現代の暮らしやすさを両立させた、これからの家族の暮らしに寄り添う住まいが完成しました。
日当たりの良いLDKは家族のくつろぎの場所に
個室も落ち着いた空間に

キッチンには便利な収納棚も造作

個室は関節照明を設け雰囲気のある空間に

テレビ台上の棚は飾り棚としても使えます

家族の気配を感じながらそれぞれがくつろげる空間に

キッチンも最新式で毎日の料理も快適に

シンプルで清潔感のあるトイレ

場所:福島・郡山リノベスタジオ


中古住宅×リノベーションについて相談しよう!!
中古住宅×リノベーションについて相談しよう!