家族の時間が自然と増える、明るく開放的なLDK
リビング・ダイニングは、大きな窓から光がたっぷりと入る、開放感のある空間。ソファとダイニングテーブルをゆったりと配置し、家族みんながくつろげる場所になりました。
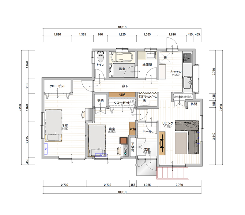
キッチンは対面式とし、料理をしながらでもリビングの様子がよく見渡せるレイアウトに。「今日あったこと」を話しながら食事の準備をしたり、配膳や片付けを家族で分担したりと、家事の時間も自然とコミュニケーションの時間に変わります。木の風合いを生かした家具や、空間に合わせたサイズ感のテーブル・ソファが、LDK全体に統一感をもたらし、落ち着きのあるカフェのような居心地の良さをつくり出しています。
毎日の家事がはかどる、スムーズな動線計画
毎日の家事が少しでも楽になるよう、動線をシンプルにまとめました。キッチンから洗濯スペース、脱衣所、クローゼットまでを一直線につなぐことで、移動のムダを減らし、作業がスムーズに進みます。
料理の合間に洗濯をしたり、洗い終わった衣類をそのまま収納したりと各所にスペースを活かした収納も設けているので、家事の流れが自然につながる間取りに。忙しい日常の中でも、無理なく家事をこなせる住まいになりました。
-
天井が高く開放的なLDK
-
キッチンもたくさん光が入る明るい空間に
自分の時間を大切にできる、造作デスクのある個室
個室には、それぞれのライフスタイルに合わせた造作デスクを設置。仕事や読書、趣味の時間など、集中して過ごせる場所として活躍しています。用途に合わせた収納も充実しているので、作業道具や本もすっきり収まり、使い終わったあとも自然と片付く空間に。
LDKで家族と過ごす時間と、個室で自分の時間を楽しむ時間。その切り替えが心地よくできることで、暮らし全体にゆとりが生まれました。

-
ライフスタイルに合わせた個室
-
好みに合わせた個室、収納も充実しています
暮らしが整い、毎日が心地よくまわり出す住まい
リノベーションによって、住まいの使い方が大きく変わりました。LDKを中心に家族が自然と集まり、それぞれの個室では自分の時間に集中できる。生活のリズムに合わせて、無理なく過ごせる住まいへと整っています。収納や動線を見直したことで、物があったら自然と片づけられるようになり、家事や身支度もスムーズに進むようになりました。
リビングでくつろぐ時間も、食事を囲む時間も、そして個室で過ごすひとりの時間も。どの時間も、今まで以上に心地よく感じられるようになったそうです。家族の時間と、自分の時間。そのどちらも大切にできる、ちょうどいい距離感のある住まいが完成しました。
-
このソファで家族一緒にゆったりくつろげます
-
リビングとの距離が近いので、料理をしながら会話も弾みます






